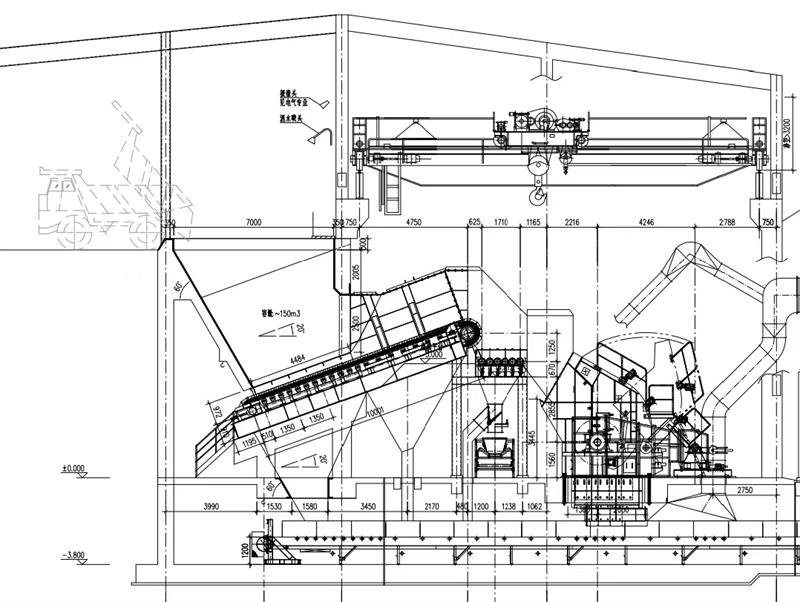
图解重型板式给料机和泥石分离机的工艺布置。
图解重型板式给料机和泥石分离机的工艺布置。
重型板式给料机做为砂石骨料生产线的给料输送单元,其主要担负把汽车来料或矿卡来料均匀输送给下一级破碎设备工作,对于含泥量大的原料加泥石分离机可以有效提高破碎率,减少或避免破碎机“糊腔”现象发生。关键词:重型板式给料机、泥石分离机、滚轴筛、波辊给料机

- 上一篇:没有了;
- 下一篇:喜报:中国黄金B2000重型板式给料机链板顺利交付
图解重型板式给料机和泥石分离机的工艺布置。
重型板式给料机做为砂石骨料生产线的给料输送单元,其主要担负把汽车来料或矿卡来料均匀输送给下一级破碎设备工作,对于含泥量大的原料加泥石分离机可以有效提高破碎率,减少或避免破碎机“糊腔”现象发生。关键词:重型板式给料机、泥石分离机、滚轴筛、波辊给料机
